首页
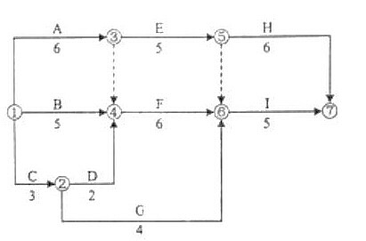
双代号网络计划如下图所示(时间单位:天),其计算工期是( )天。
2023-11-02 22:04:51
施工管理
双代号网络计划如下图所示(时间单位:天),其计算工期是( )天。
A.16
B.17
C.18
D.20
正确答案是B
上一篇:
根据《建筑安装工程费用项目组成》(建标[2013]44号),下列费用中,应计入措施项目费的是( )。
下一篇:
政府质量监督机构对建设工程进行第一次监督检查的重点是( )。